Vienības gatve 109, Rīga

Cena 5,000 EUR

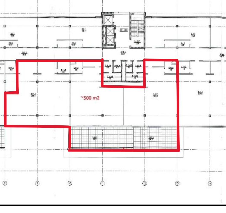
Platība

500 m2

Stāvs

5 / 6 Stāvi

Istabas

1 Istabas

Iznomā modernas biroja telpas Unity Biznesa Centrā, Vienības gatvē 109, Rīgā. Piedāvājam gaišas un funkcionālas biroja telpas 500 m² platībā (ar iespēju dalīt uz pusi) ēkas 5. stāvā. Telpas ir ideāli piemērotas mūsdienīga uzņēmuma vajadzībām, nodrošinot gan reprezentatīvu vidi, gan maksimālu komfortu darbiniekiem. Telpu apraksts un priekšrocības: - Moderns open space birojs ar iespēju pielāgot plānojumu atbilstoši nomnieka vajadzībām; - Izeja uz plašu terasi (nav iekļauta nomātajā platībā); - Kvalitatīva apdare: pilnstikla konstrukcijas, paklāja grīdas segums, LED apgaismojums, modernas dzesēšanas kasetes un ventilācijas sistēma; - Atsevišķs tualešu bloks ar kungu un dāmu WC, dušas telpu un labierīcībām cilvēkiem ar kustību traucējumiem. Nomas nosacījumi: - Nomas maksa – 10,00 EUR/m² + PVN; - Apsaimniekošanas maksa – 2,00 EUR/m², kas ietver 24/7 apsardzi, koplietošanas telpu un teritorijas uzkopšanu, inženierkomunikāciju apkalpošanu u.c.; - Komunālie maksājumi – pēc faktiskā patēriņa (elektrība, siltums, ūdens). Autostāvvietas: - 4 bezmaksas vietas ēkas pazemes autostāvvietā; - Papildu vietas virszemē – 20 EUR + PVN/mēnesī; - Īslaicīga bezmaksas novietne (līdz 2h) pie TC Maxima. Biznesa centra ērtības: - Pusdienu restorāns, konferenču telpa (150 m², līdz 80 pers.); - “MFD” medicīnas centrs, tūrisma birojs, dažādi veikali, ķīmiskā tīrītava; - Bērnudārzs, fitnesa studija, fizioterapijas centri, skaistumkopšanas un frizieru saloni; - Elektroauto uzlādes stacija (4 vietas), velo un skrejriteņu novietnes. Atrašanās vieta: - Vecrīga / Centrs – 10 min - Lidosta Rīga – 10 min - Centrālā stacija – 10 min - Jūrmala – 20 min. Telpas pieejamas uzreiz. Šī ir lieliska izvēle uzņēmumiem, kas vēlas prestižu, ērtu un darbiniekiem draudzīgu biroja vidi.
Aģents

Samanta Kaufmane

Aģents

Saziņas veidlapa